LAB217

Village de l’innovation industrielle

collage-vue-cour-industrielle-2560x.jpg
ba217-axo-collage-2560x.jpg

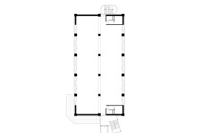
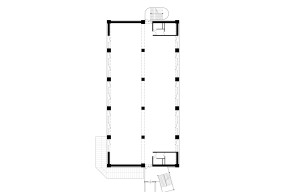
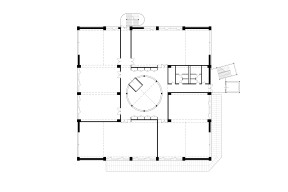
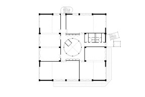
LAB 217 est le projet lauréat de l’AMI « Village de l’Innovation » de l’ancienne Base aérienne 217 à Brétigny-sur-Orge, devenue « laboratoire des nouvelles pratiques urbaines » sous l’impulsion de l’AUC, urbanistes de la zone. Les start-ups industrielles, pour lesquelles ce campus est imaginé, incarnent un nouveau visage de l’industrie qu’il s’agit de traduire dans l’architecture, en rupture avec les modèles d’immobiliers industriels en usage. Le projet explore quelle pourrait être l’identité d’une nouvelle architecture industrielle à travers quatre typologies bâties, déclinant des principes communs tels que la verticalisation des architectures productives, la combinaison de trois types d’espaces – bureaux, ateliers, hangars -, le travail de la qualité spatiale à travers la coupe et les espaces de distribution. Ces quatre architectures s’articulent autour d’une cour productive, espace partagé, à la fois minéral, productif, lieu de stockage et d’expérimentations, et un espace arboré, garant de la bonne gestion des eaux de ruissellement et support d’usages collectifs.

ba217-planmasse-2560x.jpg
Commanditaire Imetik
Date Concours lauréat en 2023
Lieu Bretigny-sur-Orge (91)
Mission Mission complète de maîtrise d’œuvre, Architecte mandataire
Budget 19,6M €
Partenaires Scoping, (BE TCE) , SML (paysage), Burgeap (énergie), 2Mo (économie)
Surface 12 800m² SDP
Labels Label Effinature, Label Osmoz
ba217-collage-loft-circulation-2560x.jpg
ba217-collage-gradin-2560x.jpg
ba217-collage-loft-2560x.jpg